Italiano
320.000 €

Casa di montagna con giardino in classe A4

3 locali in vendita • Antey Saint Andrè - Frazione Epaillon, 22
Ultimo Piano Immobiliare propone in esclusiva una splendida casa di montagna con giardino privato, in classe energetica A4.
Situata in una tranquilla frazione di Antey-Saint-André, a pochi minuti di auto dalle rinomate località sciistiche di Valtournenche e Breuil-Cervinia, questa proprietà rappresenta il perfetto equilibrio tra comfort, natura e sostenibilità.
L'abitazione si trova al piano terra di una piccola palazzina composta da sole due unità abitative ed è completamente indipendente. Oggetto di una recente e accurata ristrutturazione, l’immobile è dotato di tutte le tecnologie più moderne per il risparmio energetico: cappotto termico, pompa di calore, pannelli solari, colonnina per la ricarica di auto elettriche e molto altro.
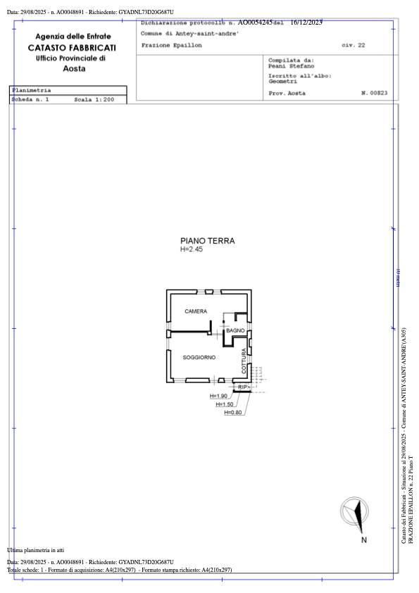
Gli spazi interni sono così distribuiti: ingresso su luminoso soggiorno con angolo cottura, ampia camera da letto con cabina armadio, bagno finestrato e uno splendido giardino privato, ideale per rilassarsi immersi nel verde.

In origine l’immobile disponeva di una seconda camera da letto, facilmente ripristinabile con semplici interventi, a seconda delle proprie esigenze.

Una soluzione ideale per chi desidera un rifugio accogliente, moderno e sostenibile. Perfetta come casa vacanze o per vivere tutto l’anno in un’oasi di pace e bellezza.

Se stai cercando un'esperienza immobiliare su misura, noi di Ultimo Piano Immobiliare siamo qui per te. Con un'approfondita indagine sulle tue esigenze, ti aiuteremo a trovare la casa dei tuoi sogni e ti accompagneremo in sicurezza durante tutto il processo di acquisto. Per coloro invece che hanno un immobile da vendere, offriamo un servizio unico nel suo genere di valorizzazione immobiliare, garantendo il massimo risultato in termini di tempo e denaro. La nostra media di recensioni Google testimonia l'eccellenza del nostro servizio. Contattaci oggi stesso e vivi un'esperienza immobiliare senza confronti.
Caratteristiche principali
Codice
V001242
Città
Antey Saint Andrè
Categoria
3 locali
Prezzo
320.000 €
Locali
3
Camere
1
Bagni
1
Mq
79
Piano
Terra
Classe energetica
A4
11,59
Stato Immobile
Ristrutturato
Grado
Signorile
Posizione
Montagna
Panorama
Vista Aperta
Orientamento
Nord Ovest Sud Est
Lati Liberi
4
Giardino
Privato
Arredi
Possibilità
Tipo Soggiorno
Soggiorno
Tipo Cucina
Angolo Cottura
Riscaldamento
Autonomo
Tipo Riscaldam.
Pompa di Calore
Tipo Impianto
Pavimento
Fonte Energetica
Elettrico
Acqua Calda
Autonoma a Pannelli
Raffrescamento
Non Necessario
Infissi
Alluminio Triplo Vetro
Serramenti
Nuovo
Isolamento
Presente
Isolamento termico
Cappotto esterno
Isolamento acustico
Isolamento pareti

Accessori: Armadio a Muro, Cancello Elettrico, Pannelli Solari, Parco Condominiale, Porta Blindata, Tavolini Esterni

Mappa
Frazione Epaillon 22, Antey Saint Andrè (AO)
Consulenti per informazioni
Daniele Gay
Daniele Gay
+39 335 8179679
Valentina Vulcano
Valentina Vulcano
+39 348 9742939
Richiedi informazioni
Invia
Condividi su
Cookie preference