Italiano
600.000 €

Villa singola a pochi minuti da Aosta

Villa in vendita • Pollein (Capoluogo) - Localita Capoluogo, 79
L'agenzia immobiliare Ultimo Piano propone in esclusiva moderna villa singola a Pollein in zona molto comoda ai principali servizi e a pochi minuti in auto da Aosta.
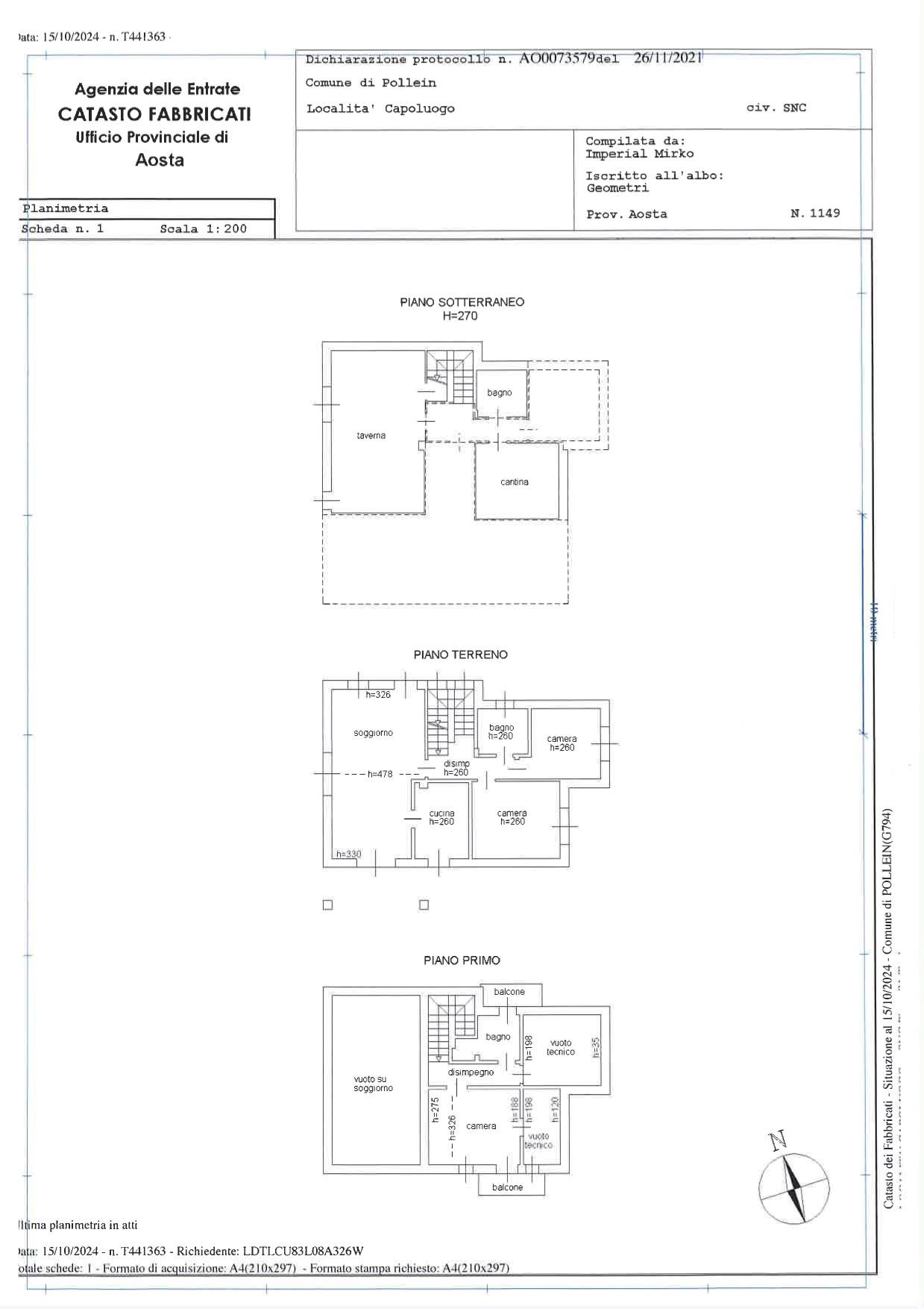
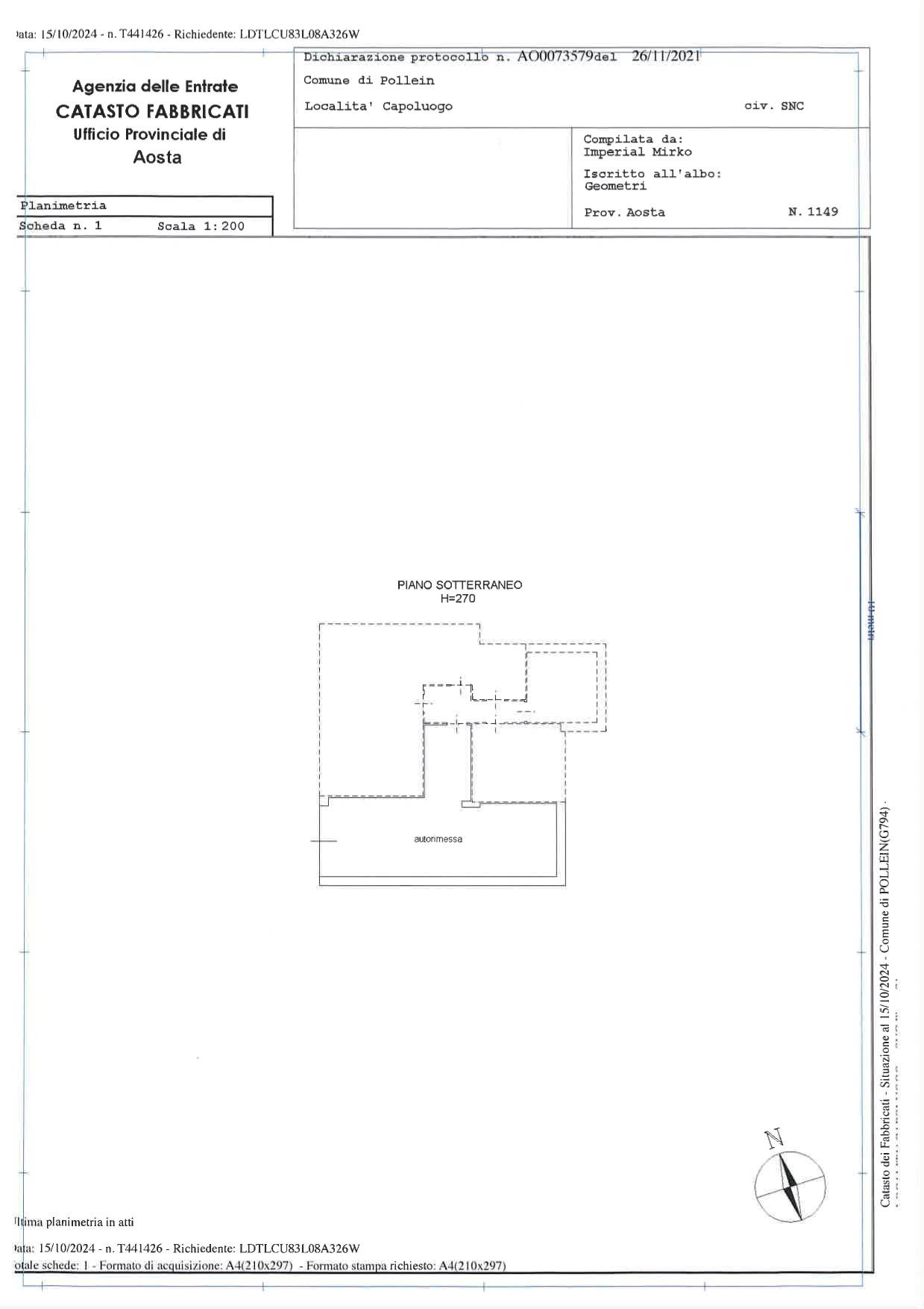
L'unità immobiliare, costruita nel 2011, si presenta in ottimo stato manutentivo interno ed è composta da: ingresso, grande soggiorno con zona pranzo, cucina semiabitabile, 2 camere da letto e bagno al piano terreno; camera con cabina armadio, disimpegno, ripostigli e 2 balconi al piano superiore; taverna finestrata, (ideale per eventuale zona ospiti), bagno, cantina-dispensa, centrale termica-lavanderia e garage doppio (con sezionale elettrica) al piano sotterraneo.
L'immobile è circondato da un bel giardino con zona frutteto, ampia zona porticato e barbecue, ha a disposizione un ampio piazzale lastricato (con zona coperta) per il parcheggio di ulteriori 4 autovetture.
Ottimo investimento immobiliare, in zona facilmente raggiungibile, urbanizzata e al tempo stesa dotata di privacy.

Se stai cercando un'esperienza immobiliare su misura, noi di Ultimo Piano Immobiliare siamo qui per te. Con un'approfondita indagine sulle tue esigenze, ti aiuteremo a trovare la casa dei tuoi sogni e ti accompagneremo in sicurezza durante tutto il processo di acquisto. Per coloro invece che hanno un immobile da vendere, offriamo un servizio unico nel suo genere di valorizzazione immobiliare, garantendo il massimo risultato in termini di tempo e denaro. La nostra media di recensioni Google testimonia l'eccellenza del nostro servizio. Contattaci oggi stesso e vivi un'esperienza immobiliare senza confronti.
Caratteristiche principali
Codice
V001225
Città
Pollein (Capoluogo)
Categoria
Villa
Prezzo
600.000 €
Locali
9
Mq
149
Mq Box
52
Classe energetica
In fase di valutazione
Stato Immobile
Nuovo
Grado
Signorile
Posizione
Collina
Panorama
Vista Aperta
Orientamento
Nord Ovest Sud Est
Lati Liberi
4
Giardino
Privato
Arredi
Possibilità
Tipo Soggiorno
Soggiorno
Tipo Cucina
Semi Abitabile
Riscaldamento
Autonomo
Tipo Riscaldam.
Caldaia a Condensazione
Tipo Impianto
Radiatori
Fonte Energetica
Metano
Acqua Calda
Autonoma a Pannelli
Raffrescamento
Split
Infissi
PVC Doppio Vetro
Serramenti
Nuovo
Pavim. Giorno
Ceramica
Pavim. Notte
Parquet
Pavim. Cucina
Ceramica
Pavim. Bagno
Ceramica
Accesso Disabili
No

Accessori: Antifurto, Aria Condizionata, Cancello Elettrico, Doppi Vetri, Pannelli Solari, Porta Blindata, Vasca Idromassaggio, Video Citofono

Mappa
Localita Capoluogo 79, Pollein (AO)
Consulenti per informazioni
Daniele Gay
Daniele Gay
+39 335 8179679
Jessica Pronesti
Jessica Pronesti
+39 347 7856400
Valentina Vulcano
Valentina Vulcano
+39 348 9742939
Richiedi informazioni
Invia
Condividi su
Cookie preference